Custom ADU Design in San Diego & Los Angeles

We specialize in designing accessory dwelling units that respond to both your property and local regulations. Every project is carefully planned to maximize space, natural light, and long-term value while meeting zoning and building requirements.

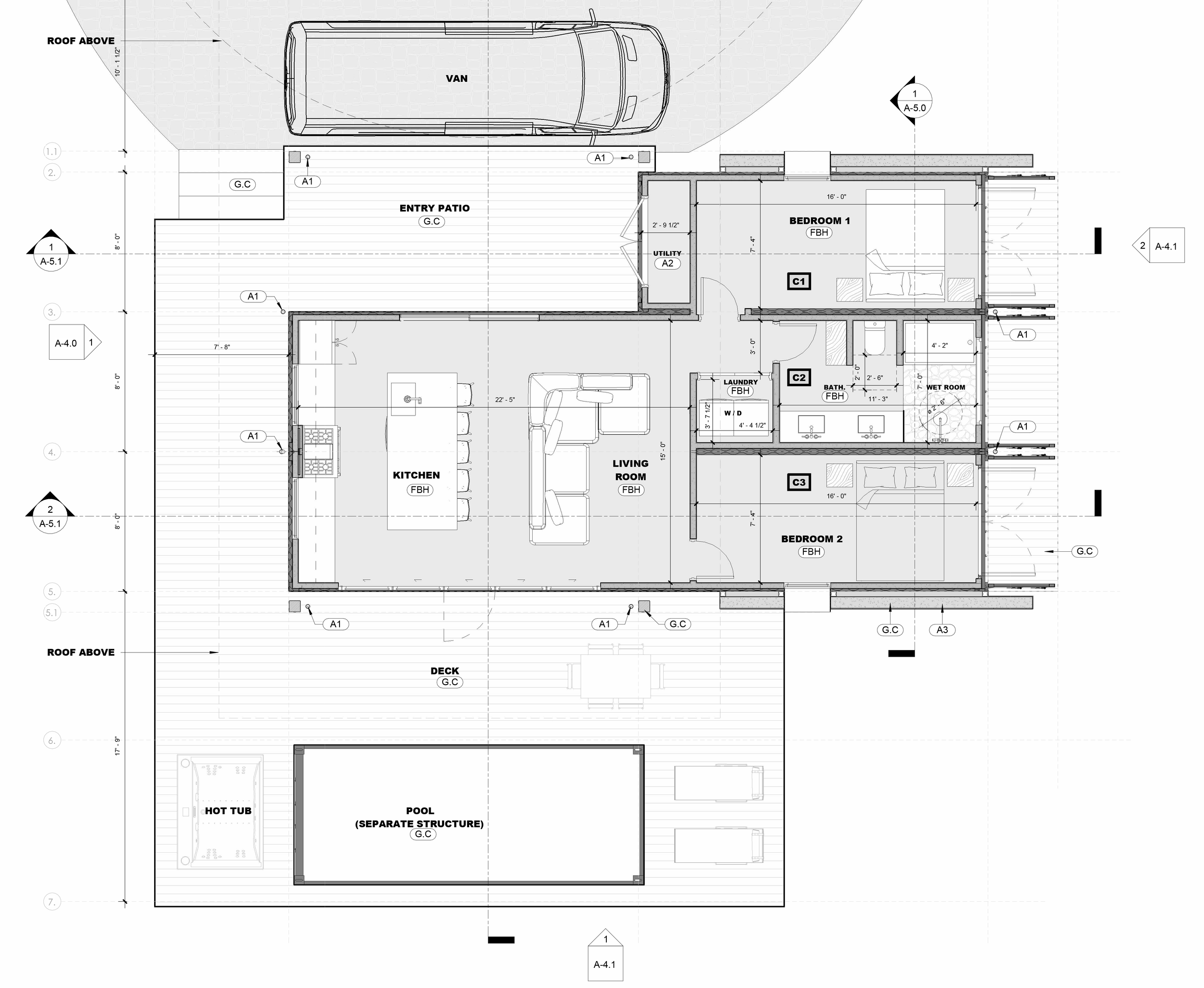
Design an ADU that actually fits your life, not just your lot. We create fully customized accessory dwelling units tailored to your goals, whether that means generating rental income, housing family, or expanding your living space. Our team develops thoughtful, efficient designs that can be built through traditional site construction or streamlined prefabrication methods. For clients interested in innovative solutions, we partner with Backcountry Containers to design and deliver high-quality shipping container ADUs. From early concepts through permit-ready construction documents, we coordinate closely with fabricators, consultants, and local contractors to ensure your project is buildable, efficient, and aligned with your vision. With extensive experience navigating permitting requirements across San Diego city, San Diego County, and Los Angeles County, we help move your project forward with clarity and confidence

What We Offer

  • Custom ADU floor plans tailored to your property and lifestyle

  • Prefabricated ADU design coordination (including shipping container ADUs)

  • Traditional site-built ADU design and documentation

  • Design guidance for materials, systems, and spatial flow

  • 3D Modeling and photo-realistic visualization

  • Floor plans, elevations, roof plans, details, structural engineering plans & calcs

  • Title 24 coordination and consultant integration

  • Structural Engineering coordination and consultant integration

  • Permit-ready construction drawings

  • Coordination & Collaboration with consultants, contractors, and fabrication teams

  • Site planning, layout development, and feasibility studies

ADU Types We Design

  • Detached ADUs

  • Attached ADUs

  • Garage conversions

  • Junior ADUs (JADUs)

  • Multi-unit and income-producing ADUs

Choose Your ADU Approach

  • Custom Designed ADU

    Tailored to your property and lifestyle

  • Prefabricated ADU

    Faster construction, streamlined process

  • Shipping Container ADU

    Modern, modular, and efficient

Our Process

  1. Consultation & Feasibility
    Evaluate your property, zoning, and goals

  2. Concept Design
    Develop layout options and spatial strategies

  3. Design Development
    Refine materials, systems, and construction approach

  4. Construction Documents
    Prepare permit-ready drawings for submittal

  5. Permit Process Management

    Coordinate with local jurisdiction reviewers to assure the approval of building permit.

  6. Construction Admin. Coordination & Support
    Work with contractors, fabricators, and consultants

Why Clients Choose Us

  • Experience with San Diego & LA County permitting processes

  • Flexible design approach (prefab or site-built)

  • Strong coordination with builders and fabricators

  • Clear, efficient workflow from concept to permit

  • Design-forward thinking with practical execution

Let’s design an ADU that works for your property, your goals, and your future.


If you're interested in working with us, complete the form with a few details about your project. We'll review your message and get back to you within 48 hours. For quicker responses, go ahead and call the number below.

Get In Touch