Custom Home Design in San Diego & Los Angeles

We design custom homes that respond to both the site and the way you live. Each project is developed with a focus on spatial flow, natural light, and long-term functionality, while aligning with local zoning and building requirements across San Diego and Los Angeles County.

Design a home that reflects how you actually live. We develop fully custom residential designs tailored to your lifestyle, site conditions, and long-term vision. From initial concept through permit-ready construction documents, our process balances design intention with buildability. We work closely with homeowners, contractors, and consultants to create homes that are thoughtful, efficient, and grounded in real-world construction. Whether modern, traditional, or something in between, each project is approached as a unique opportunity to create a meaningful living environment.

For clients interested in alternative solutions, we partner with Backcountry Containers to design and deliver high-quality shipping container modular structures. From early concepts through permit-ready construction documents, we coordinate closely with fabricators, consultants, and local contractors to ensure your project is buildable, efficient, and aligned with your vision. With extensive experience navigating permitting requirements across San Diego city, San Diego County, and Los Angeles County, we help move your project forward with clarity and confidence

What We Offer

  • Custom home design, any style, from concept through construction documents

  • Design guidance for materials, systems, and spatial flow

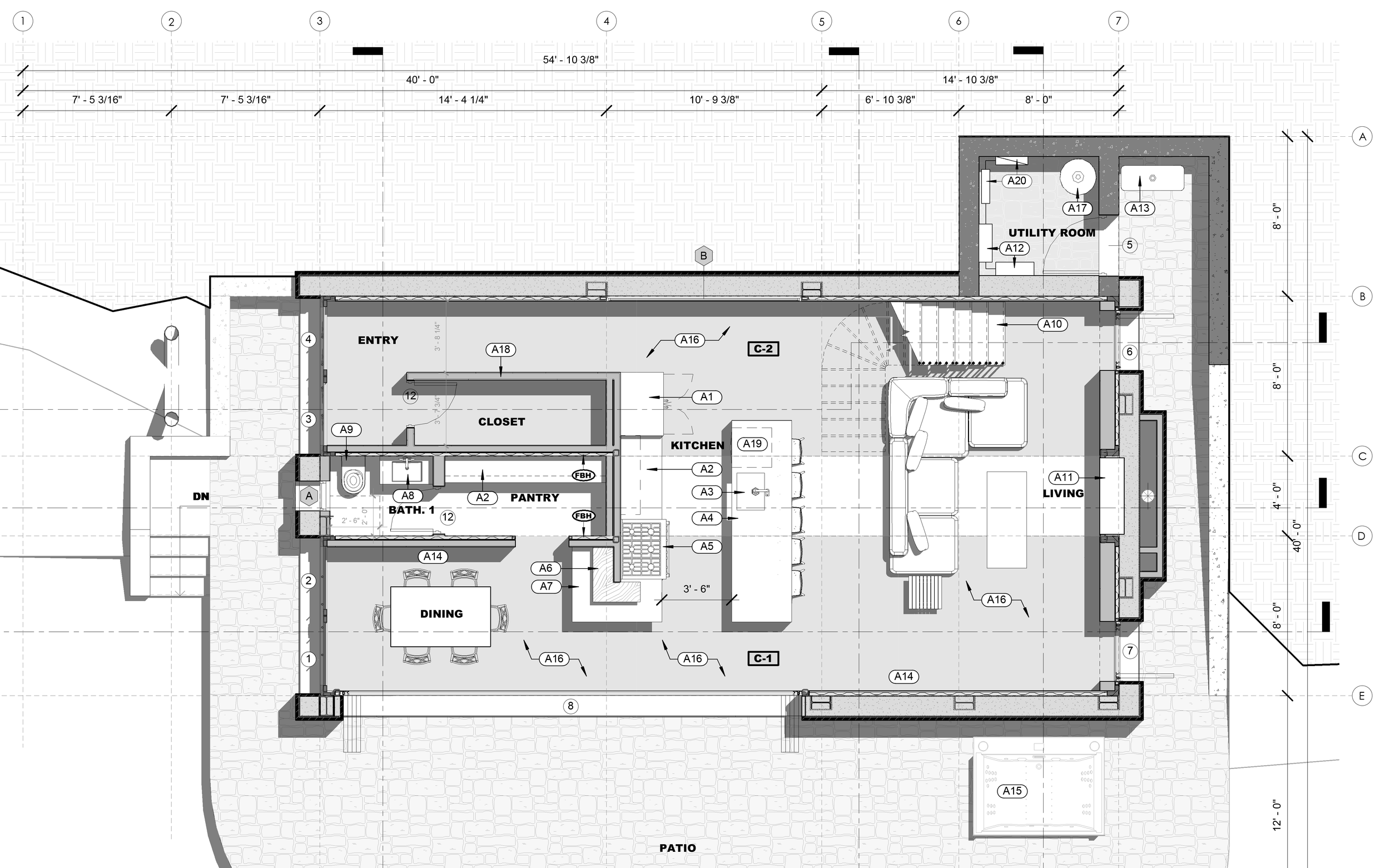
  • 3D Modeling and photo-realistic visualization

  • Floor plans, elevations, roof plans, details, structural engineering plans & calcs

  • Title 24 coordination and consultant integration

  • Structural Engineering coordination and consultant integration

  • Permit-ready construction drawings

  • Coordination & Collaboration with consultants, contractors, and fabrication teams

  • Site planning, layout development, and feasibility studies

Our Process

  1. Consultation & Feasibility
    Evaluate your property, zoning, and goals

  2. Concept Design
    Develop layout options and spatial strategies

  3. Design Development
    Refine materials, systems, and construction approach

  4. Construction Documents
    Prepare permit-ready drawings for submittal

  5. Permit Process Management

    Coordinate with local jurisdiction reviewers to assure the approval of building permit.

  6. Construction Admin. Coordination & Support
    Work with contractors, fabricators, and consultants

Custom Home Project Types

  • Ground-up single-family homes

  • Hillside and view-oriented properties

  • Modern and mid-century inspired homes

  • Desert, mountain, & beach style homes

  • Primary residences and vacation homes

Why Clients Choose Us

  • Design-driven approach grounded in construction knowledge

  • Clear, efficient documentation for permitting and building

  • Collaborative process with builders and consultants

  • Focus on livability, flow, and long-term value


If you're interested in working with us, complete the form with a few details about your project. We'll review your message and get back to you within 48 hours. For quicker responses, go ahead and call the number below.

Get In Touch