THE BATES RESIDENCE

Bates Residence | Hybrid Container Home & ADU – Spring Valley, San Diego County

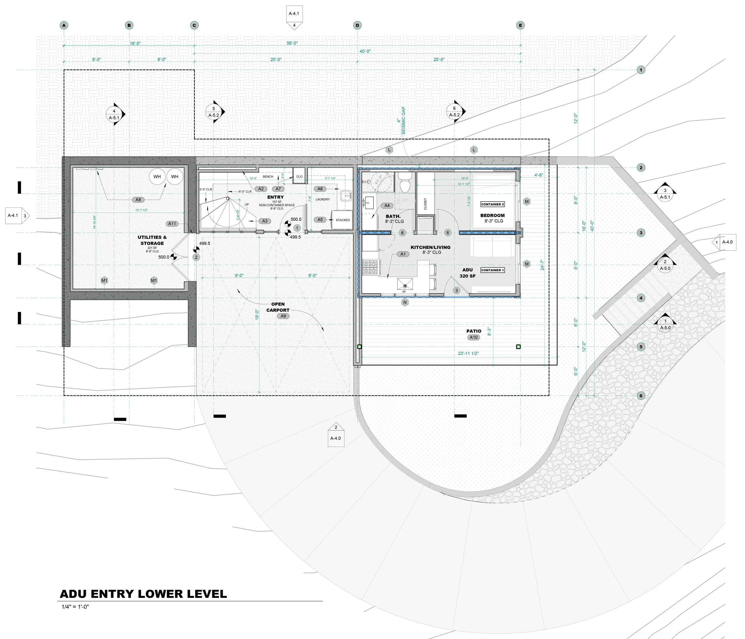
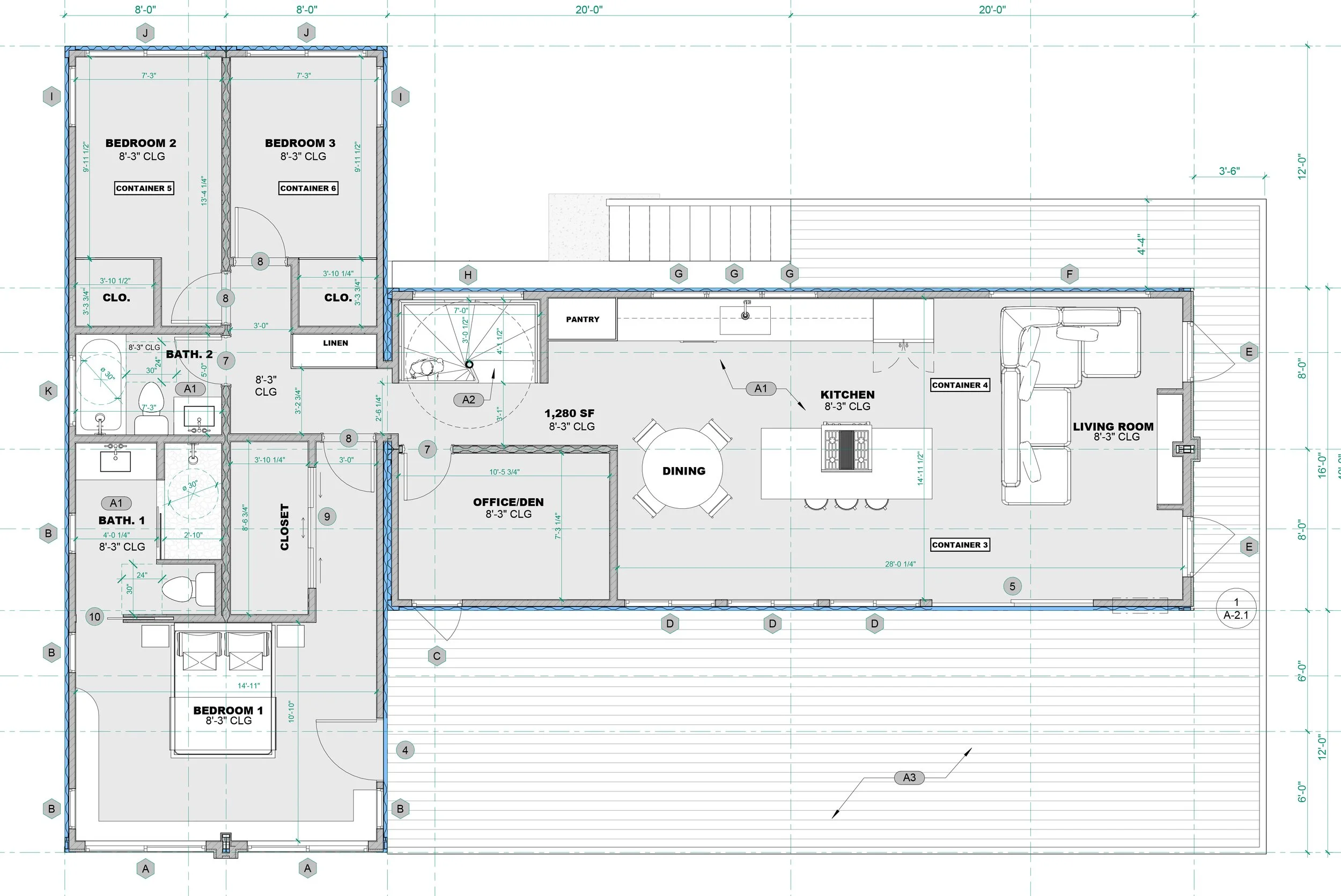
The Bates Residence is a custom-designed hybrid home in Spring Valley, San Diego County, combining six shipping containers, structural steel framing, and concrete retaining walls to create a modern, site-responsive 3-bedroom residence with an attached ADU. Designed to work with the natural slope of the lot, the home maximizes views, functionality, and outdoor living through an expansive deck that extends the living space into the surrounding landscape.

The project includes a fully integrated ADU, covered carport, and large storage area, all carefully positioned to respond to the site’s topography, lot constraints, and panoramic views. The architectural approach blends prefabricated modular construction with traditional structural systems, creating an efficient and durable hybrid building solution.

In collaboration with Backcountry Containers for the fabrication of the shipping container modules, our role encompassed full-service architectural design, structural engineering coordination, site planning, construction documentation, permitting, and construction administration. The result is a modern container home in San Diego County that reflects innovative design, efficient construction methods, and a strong connection to its environment.

Next
Next

Bright Mountain Retreat Project