HARGROVE ADDITION WHOLE HOME REMODEL & ADU

Whole Home Remodel & Addition | Modern Coastal Living – Point Loma, San Diego

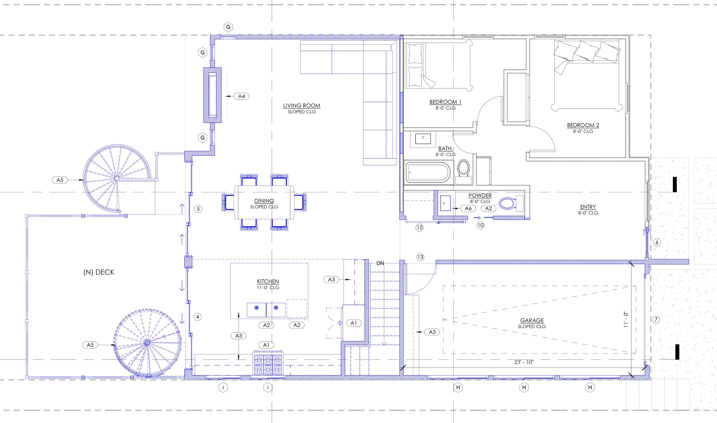
This whole home remodel and addition in Point Loma redefines coastal living through an open-concept design that maximizes natural light, ocean breezes, and expansive views. The project includes a full renovation of the existing home along with a thoughtfully integrated addition featuring a new living room, dining area, and kitchen that flow seamlessly into one cohesive space.

Designed with a modern beach aesthetic, the interior emphasizes clean lines, warm natural materials, and indoor-outdoor connectivity. Large openings extend the main living areas onto a newly constructed exterior viewing deck, creating an elevated space for entertaining and everyday living.

A spiral staircase leads to an upper-level viewing deck, offering panoramic views and a private retreat experience above. At the lower level, a newly added ADU provides flexible living accommodations, while the primary suite addition includes a spacious bedroom and a fully remodeled bathroom designed for comfort and privacy.

This Point Loma remodel blends modern coastal design with functional expansion, delivering a lifestyle-driven home that embraces views, light, and connection to the outdoors.

LOWER LEVEL & ADU FLOOR PLAN

UPPER LEVEL FLOOR PLAN

Previous
Previous

Lee Remodel & Addition