LEE WHOLE HOME REMODEL & ADDITION

Whole Home Remodel | Indoor-Outdoor Living Transformation

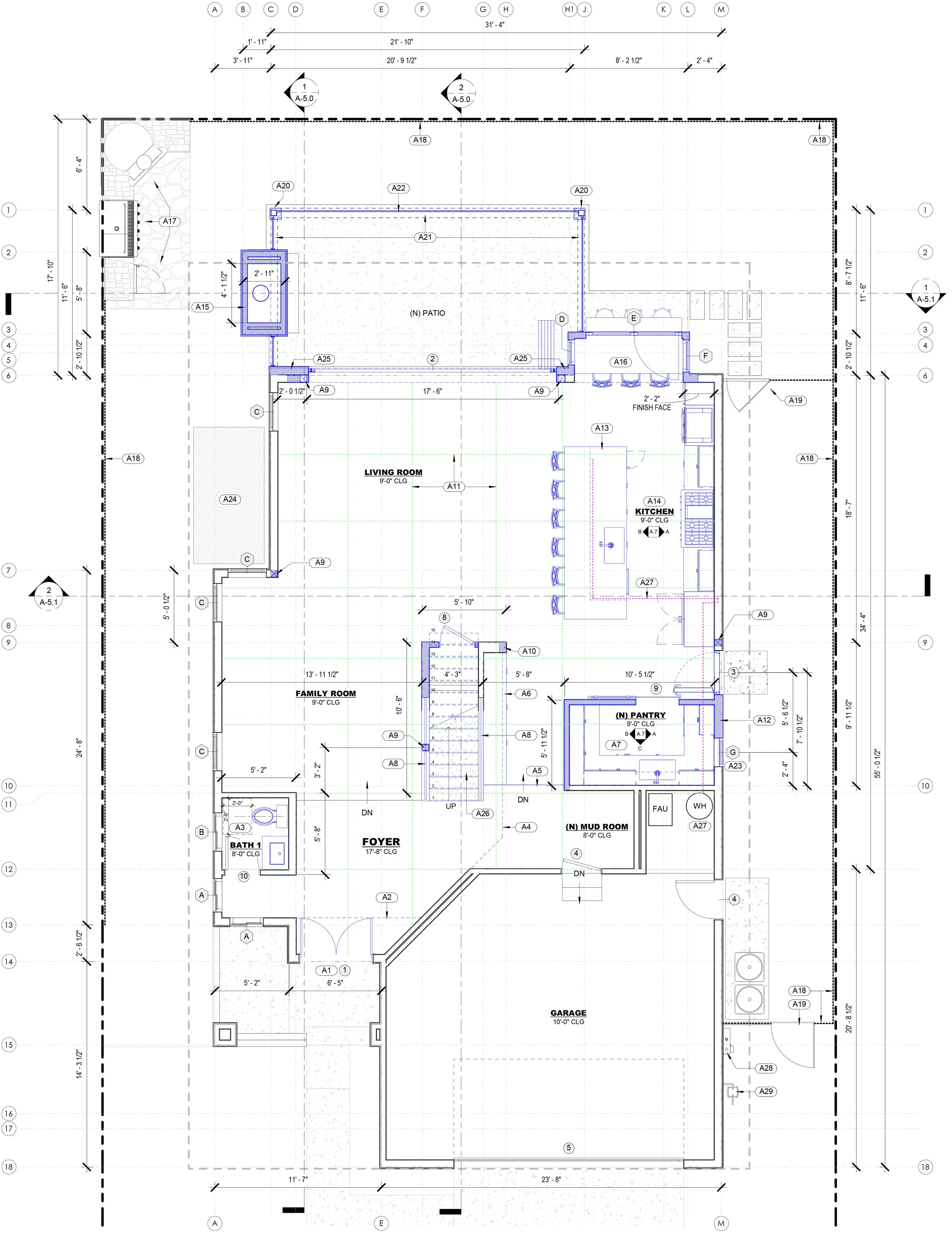
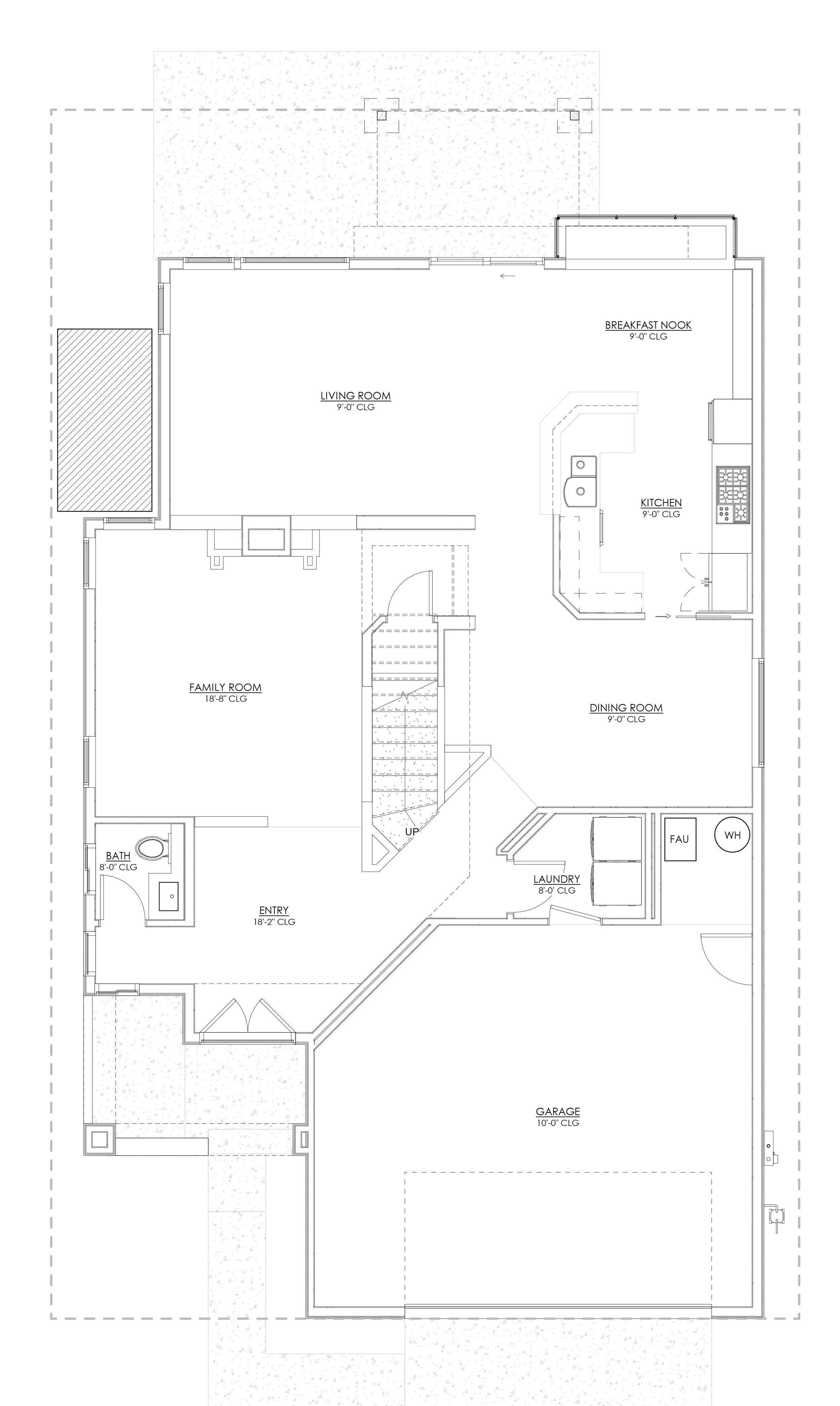
This full-scale residential remodel reimagines the home’s first floor into a seamless indoor-outdoor living experience, designed to capture expansive views of the San Diego rolling hills. The project includes a complete renovation of the entry, kitchen, dining, and living spaces, along with a new walk-in pantry addition and large bifold doors that fully open the home to a newly designed outdoor living area.

The outdoor space is anchored by a custom patio with a small pool, built-in pizza oven, and integrated seating, creating a functional and inviting environment for entertaining and everyday living. A striking double-height fireplace connects both levels, featuring a ground-level outdoor fireplace and a second fireplace on the newly added master bedroom deck above.

Upstairs, the addition of a private master deck extends the living experience outdoors while providing shade and structure to the patio below. The master bathroom was fully remodeled into a modern wet room, combining a shared tub and shower for a spa-like atmosphere.

This San Diego home remodel blends modern design, functional upgrades, and indoor-outdoor architecture to create a cohesive, lifestyle-driven living environment.

As-Built Floor Plan

Proposed Floor Plan

Previous
Previous

Paras Residence

Next
Next

Hargrove Remodel / Addition / ADU